Вхід на сайт

Ел. пошта:
Пароль:

Реєстрація на сайті

Призвіще: Область:
Ім'я: Населений пункт:
    По батькові: Номер телефону:
    Ел. пошта: Компанія:
      Пароль: Посада:
      Повторіть пароль: Рік початку роботи:
      Фото:
      З правилами розміщення об'єктів погоджуюсь

      Забули пароль?

      Вкажіть ел. пошту — ми надішлемо Вам новий пароль для входу
      Ел. пошта:

      Проблема на сайті

      Закрити
      Ваш e-mail:
      (необов'язково)
      Розкажіть нам, що сталось

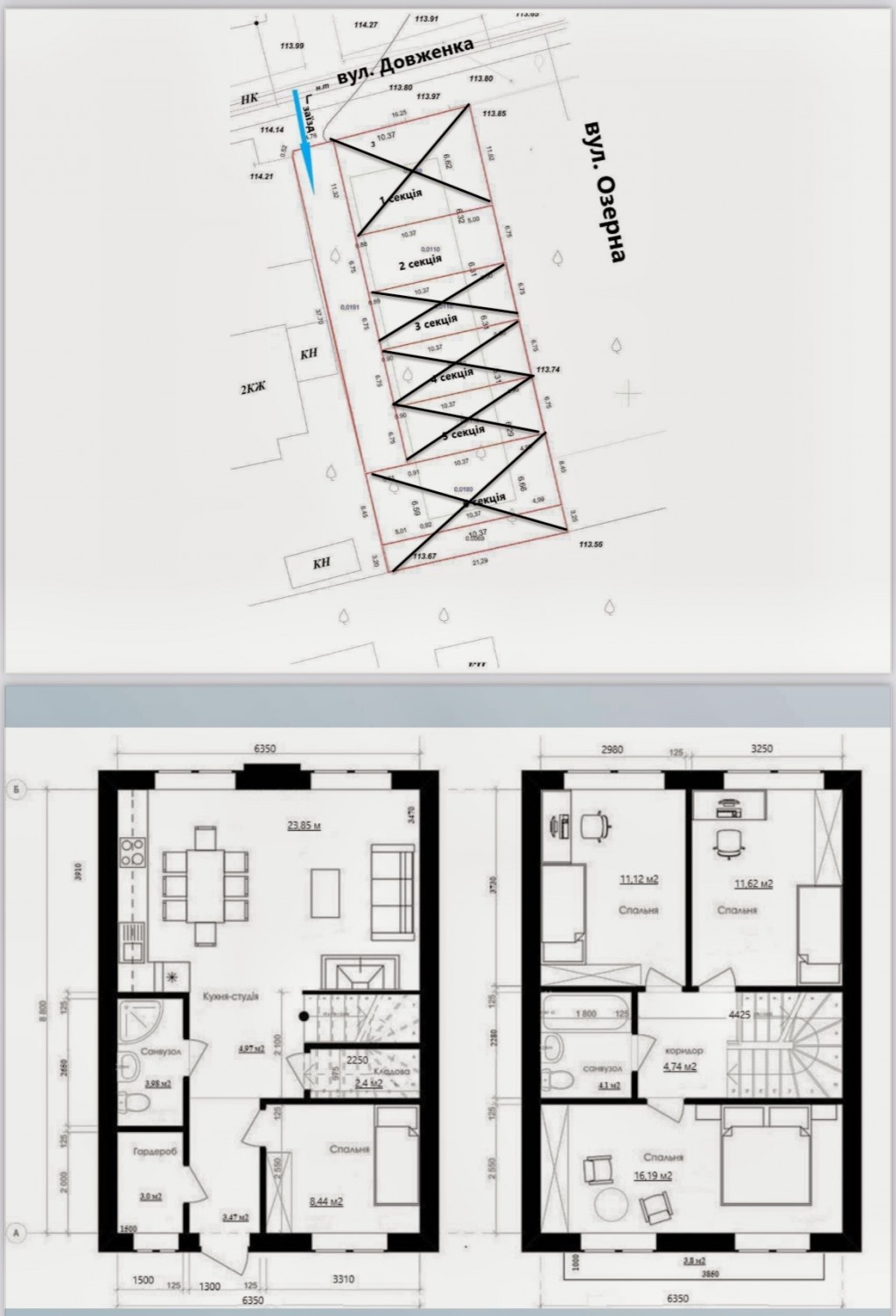
      без комісії вул. Довженка, 3 — Продається таунхаус

      (г. Ирпень)

      87000 $

      Загальна площа: 105 кв.м

      Кімнат: 4

      К-ть поверхів: 2

      Без комісії для покупця продається класний таунхаус комфорт-класу в місті Ірпінь, у тихому, спокійному місці, але зовсім поруч з основною трасою на Київ.

      Розвинена інфраструктура – магазини, пошта, сімейна амбулаторія, аптека, школа, дитячі секції, музична школа, парки, набережна.

      Як побудований будинок:
      • Зовнішні стіни – газобетонний блок 300 мм.
      • Утеплення зовнішніх стін – пінопласт 50 мм.
      • Облицювання зовнішніх стін – якісна клінкерна цегла.
      • Міжсекційні стіни – червона цегла, товщина 40 см
      • Міжкімнатні стіни – червона цегла.
      • Перекриття - заводські сертифікавані залізобетонні панелі, 1 та 2 поверх.
      • Дах - металокерамічня черепиця, утеплення мінватою.
      • Вікна – металопластикові, 2-х камерні, енергозберігаючі.
      • Вхідні двері – броньовані.
      • Фундамент – утеплений, облицювання цеглою.
      • Сходи – бетонні.
      Планування:
      • Площа – 105 кв.м.
      • 1 поверх – кухня-вітальня з можливістю встановлення каміну, кабінет, гостьовий санвузол, кладова. Бонус – погріб!
      • 2 поверх - 3 спальні , санвузол.
      • 3 поверх (мансарду) можна зробити повноцінним житловим поверхом, завдяки бетонному перектиттю.
      • З великої спальні – балкон, покритий терасною дошкою.

      Підключені комунікації та оздоблення:
      • Електрика – центральна, ввід в будинок.
      • Каналізація – центральна, ввід в будинок.
      • Водопостачання – централізоване, ввід в будинок.
      • Опалення – індивідуальне газове, ввід в будинок.
      • Лічильники на газ, воду, електрику.
      • Можливе чистове оздоблення від забудовника.

      Територія:
      • Земля – ділянка 1,1 сотки без урахування паркомісця.
      • Особиста діляночка за будинком – розміром 7Х4 метри
      • Передній двір – вимощений бруківкою.
      • Задній двір – чорнозем.
      • Паркан– металевий профіль, автоматичні ворота на пульті

      Можна розпочинати ремонт. Можлива розстрочка.
      Оформлення документів – на першого власника.

      Не упустіть найкращу пропозицію в місті!

      Надіслати скаргу

      Закрити
      Поскаржитися на об'єкт «вул. Довженка, 3 (г. Ирпень)»
      Ваш коментар:(Необов'язково)
      Ваша скарга буде надіслана ріелтору, що розмістив об'єкт, а також адміністрації сайту АФНУ.
      Ваше ім'я:
      (Обов'язково)
      Ваш e-mail для відповіді:
      (Обов'язково)

      Коментарі