Вхід на сайт

Ел. пошта:
Пароль:

Реєстрація на сайті

Призвіще: Область:
Ім'я: Населений пункт:
    По батькові: Номер телефону:
    Ел. пошта: Компанія:
      Пароль: Посада:
      Повторіть пароль: Рік початку роботи:
      Фото:
      З правилами розміщення об'єктів погоджуюсь

      Забули пароль?

      Вкажіть ел. пошту — ми надішлемо Вам новий пароль для входу
      Ел. пошта:

      Проблема на сайті

      Закрити
      Ваш e-mail:
      (необов'язково)
      Розкажіть нам, що сталось

      без комісії ул. Прокофьева, 16/5 — Продається квартира в новобудові

      (г. Сумы, Заречный район)

      44000 $

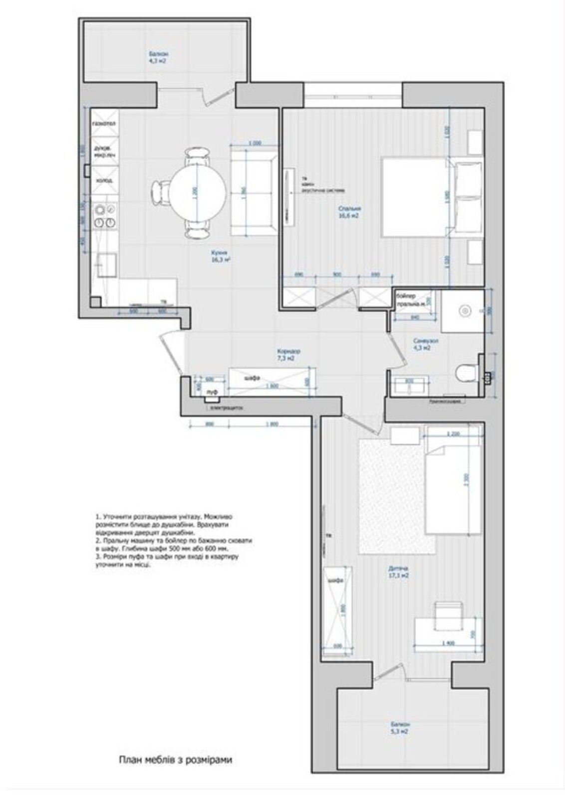
      Загальна площа: 73 кв.м

      Площа кухні: 16 кв.м

      Кімнат: 2

      Поверх: 6

      К-ть поверхів: 11

      Пропонуємо до Вашої уваги 2к квартиру по вул. Прокоф’єва 16/5

      В продажу 2к квартира 60 м2, опалення індивідуальне електричне, 6 поверх 11 етажного будинку.

      Житловий комплекс розташований у спальному районі міста Суми, по вул.Прокофьева 16/5, поряд з річкою «Псел», та парком Кожедуба.

      Технічні характеристики будинку:
      Зовнішні та внутрішні стіни з керамічної цегли.
      Зовнішнє утеплення фасадів сучасною системою з матеріалів провідних європейських фірм.
      Штукатурка внутрішніх стін високоякісними сухими сумішами.
      Покриття підлоги —цементно піщана стяжка.
      Металопластикові вікна з двокамерним склопакетом, установка підвіконь.
      Індивідуальне опалення з підключеним двоконтурним котлом.
      Мережі водопостачання, газопостачання, електропостачання з встановленими лічильниками, мережі водовідведення.
      Вхідні металеві двері.

      Місце знаходження будинку
      Будинок знаходиться біля річки Псел. Добре розвинута інфраструктура районна. Неподалік знаходяться ТЦ «Європорт», школи №9 і №6, дитячий садочок № 14 «Золотий півник».

      Ціна $44 000

      Без комісії з покупця.

      Цю квартиру можна оформити по програмі єОселя.
      Оформлюється кредит на житло за вигідними умовами в застосунку Дія
      Тепер українці, які відповідають вимогам, можуть подати заявку на кредит під 3% у застосунку Дія. Жодних походів до банків та запитань про вашу платню
      Хто може отримати кредит за програмою єОселя на цьому етапі?
      військовослужбовці за контрактом, захисники України, силовики та члени їхніх сімей
      медичні працівники
      педагоги
      науковці
      Програма єОселя в Дії — це чесні умови, простий механізм отримання, прозора фіксована процентна ставка.
      Умови, приклади розрахунків та все-все про єОселю на сайті https://eoselia.diia.gov.ua/
      Послуга реалізована Міністерством цифрової трансформації спільно з Міністерством економіки України та ПрАТ 'Укрфінжитло'.


      Житловий комплекс Прокоф’єва – це житло комфорт класу!

      Добре розвинена інфраструктура району.

      Щоденні повільні прогулянки або інтенсивні пробіжки вздовж річки «Псел», можуть стати вашими новими хорошими звичками. Влітку Ви можете провести вечір плаваючи на катамарані, а ввечері біля річки влаштувати пікнік для вашої родини.

      Телефонуйте, відповімо на всі Ваші запитання.

      Рибалка Роман

      Рибалка Роман

      Засновник та керівник (Сумська агенція нерухомості «САН») , Керівник комітету з інформаційних технологій, сервісів, аналітики, МЛС (Ассоциация специалистов по недвижимости (риэлторов) Украины)

      +380 (95) 730-10... Показати номер телефона +380 (95) 730-10-70, +380 (67) 707-93-77

      Поскаржитися на об'єкт

      Надіслати скаргу

      Закрити
      Поскаржитися на об'єкт «ул. Прокофьева, 16/5 (г. Сумы, Заречный район)»
      Ваш коментар:(Необов'язково)
      Ваша скарга буде надіслана ріелтору, що розмістив об'єкт, а також адміністрації сайту АФНУ.
      Ваше ім'я:
      (Обов'язково)
      Ваш e-mail для відповіді:
      (Обов'язково)

      Коментарі