Кімната поєднана із кухнею (велика кухня-студія 24м2) - мрія хазяйки та простір для зустрічі гостей. Та спальна кімната 23м2 із ВЕЛИКИМ ПАНОРАМНИМ вікном. 2 кімнатна квартира на дві сторони будинку. ЖК «Західний» - якісне будівництво, малоповерхова забудова. Цегляні стіни з керамічної цегли М125 товщиною 510 мм. + енергоефективне зовнішнє утеплення товщиною 12 см. Якісні ліфти HAS, Туреччина. Цегляні міжквартирні перегородки. Чорнова. АГВ - індивідуальний газовий котел PROTHERM, на гарантії. Притік повітря для спалювання в газовому котлі відбувається по спеціально облаштованим вентиляційним каналам тому повітря в квартирі завжди чисте та свіже, не спалюється. Встановлено якісні ефективні радіатори опалення.
Вікна - з енергозберігаючими технологіями - 5-камерний профіль Veka, 2-камерний енергозберігаючий склопакет. В квартирі проведена якісна мідна електропроводка. Поштукатурені всі цегляні стіни. Вхідні двері - металеві протиударні вогнестійкі. Всі лічильники. Будинок зданий навесні 2024 року.
До ЖК Західний регулярно курсує новий тролейбусний маршрут 18. 18354
Будинок зданий в 2021 році. Нотаріальне оформлення. ЖК «Західний» - якісне будівництво, малоповерхова забудова. Цегляні стіни з керамічної цегли М125 товщиною 510 мм. + енергоефективне зовнішнє утеплення товщиною 12 см.…
Будинок зданий в 2021 році. Нотаріальне оформлення. ЖК «Західний» - якісне будівництво, малоповерхова забудова. Цегляні стіни з керамічної цегли М125 товщиною 510 мм. + енергоефективне зовнішнє утеплення товщиною 12 см.…
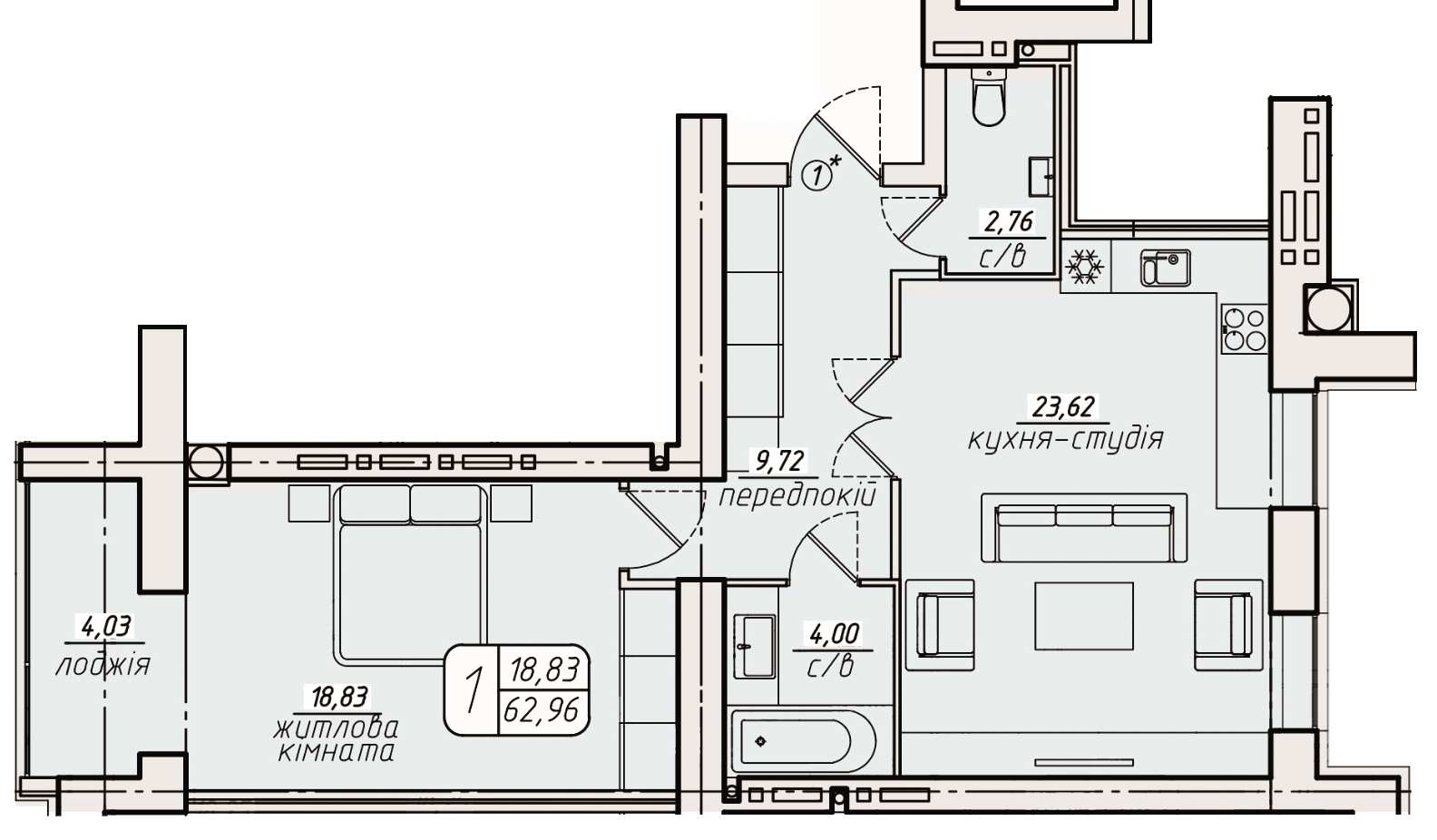
Продаю 1 кімн. квартиру 47.13 кв.м. в новому сучасному житловому комплексі "Західний". Будинок № 7 Квартира з АГВ, не кутова. Балкон з кімнати. Висота стелі 2,7 м. Стіни - чистова…