Вхід на сайт

Ел. пошта:
Пароль:

Реєстрація на сайті

Призвіще: Область:
Ім'я: Населений пункт:
    По батькові: Номер телефону:
    Ел. пошта: Компанія:
      Пароль: Посада:
      Повторіть пароль: Рік початку роботи:
      Фото:
      З правилами розміщення об'єктів погоджуюсь

      Забули пароль?

      Вкажіть ел. пошту — ми надішлемо Вам новий пароль для входу
      Ел. пошта:

      Проблема на сайті

      Закрити
      Ваш e-mail:
      (необов'язково)
      Розкажіть нам, що сталось

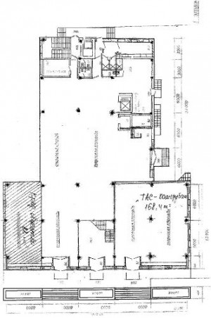
      Мелитополь Запорожская обл — Продається торгівельний майданчик

      (г. Мелитополь)

      800000 $

      Загальна площа: 2000 кв.м

      К-ть поверхів: 2

      1. Отдельно стоящий 2х этажный торговый комплекс по ул. Джержинского в р-не магазина «Амстор». 1й этаж 987 м2, 2й этаж 987 м2. вход на 2й этаж отдельный. 34 сот в аренде. Пожарная и охранная сигнализации, автономное отопление. Возможность продажи поэтажно, продажа долевого участия . Стоимость 1го этажа 650 дол/м2; 2го 550 дол/м2. Есть автостоянка. На данный момент сдается в аренду, возможность продажи с арендаторами. Есть место под парковку. Стоимость комплекса 800 000дол.

      Надіслати скаргу

      Закрити
      Поскаржитися на об'єкт «Мелитополь Запорожская обл (г. Мелитополь)»
      Ваш коментар:(Необов'язково)
      Ваша скарга буде надіслана ріелтору, що розмістив об'єкт, а також адміністрації сайту АФНУ.
      Ваше ім'я:
      (Обов'язково)
      Ваш e-mail для відповіді:
      (Обов'язково)

      Коментарі