Вхід на сайт

Ел. пошта:
Пароль:

Реєстрація на сайті

Призвіще: Область:
Ім'я: Населений пункт:
    По батькові: Номер телефону:
    Ел. пошта: Компанія:
      Пароль: Посада:
      Повторіть пароль: Рік початку роботи:
      Фото:
      З правилами розміщення об'єктів погоджуюсь

      Забули пароль?

      Вкажіть ел. пошту — ми надішлемо Вам новий пароль для входу
      Ел. пошта:

      Проблема на сайті

      Закрити
      Ваш e-mail:
      (необов'язково)
      Розкажіть нам, що сталось

      ул. Кацарская, 2/4 — Здається офіс

      (г. Харьков, Ленинский район)

      13 $ за кв.м.

      Загальна площа: 600 кв.м

      Поверх: 2

      К-ть поверхів: 4

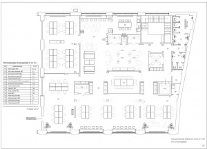
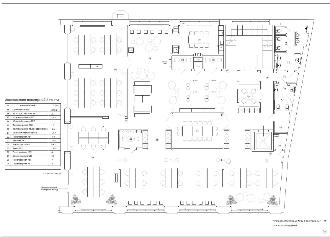
      Аренда помещения с ремонтом ул. Коцарская, 2/4:

      • площадь 600 м2
      • 2 этаж в новом офисном блоке БЦ «Тиняковка»
      • цена аренды 13,5 $/м.кв. + коммунальные и эксплуатационные услуги
      • подойдет под офис, коворкинг и другие виды деятельности

      БЦ «Тиняковка» - это современный бизнес центр класса B, который отвечает всем требованиям для комфортного и продуктивного ведения бизнеса.

      Характеристики:
      - соседние офисы занимают IT-компании;
      - площадь 600 м.кв.;
      - 52 рабочих места (кабинет на 20 мест и 32 места опен-спейс);
      - большая переговорная для 20 человек;
      - 5 переговорных комнат для 2-5 человек, есть вся мебель;
      - кухня укомплектована с техникой и мебелью;
      - 5 санузлов;
      - лифт;
      - высота потолков 3,5 м
      - круглосуточный доступ;
      - система контроля доступа;
      - панорамные окна;
      - инверторные кондиционеры и приточно-вытяжная вентиляция;
      - серверная и кладовая;
      - возможна комплектация мебелью для рабочих мест;
      - есть мебель в лануж-зонах (диваны, стойки и стулья вдоль окон,система хранения);

      Удобная транспортная развязка:
      - Центральный рынок - 300 м (пешком 3-4 мин);
      - Пл.Конституции - 713 м (пешком 8 мин);
      - Исторический Музей - 670 м (пешком 8 мин).

      Остались вопросы?
      Пишите Viber / Telegram или звоните + 38 (095) 769-73-33, мы с радостью Вам ответим.
      компания stepREALTY

      Надіслати скаргу

      Закрити
      Поскаржитися на об'єкт «ул. Кацарская, 2/4 (г. Харьков, Ленинский район)»
      Ваш коментар:(Необов'язково)
      Ваша скарга буде надіслана ріелтору, що розмістив об'єкт, а також адміністрації сайту АФНУ.
      Ваше ім'я:
      (Обов'язково)
      Ваш e-mail для відповіді:
      (Обов'язково)

      Коментарі