Вхід на сайт

Ел. пошта:
Пароль:

Реєстрація на сайті

Призвіще: Область:
Ім'я: Населений пункт:
    По батькові: Номер телефону:
    Ел. пошта: Компанія:
      Пароль: Посада:
      Повторіть пароль: Рік початку роботи:
      Фото:
      З правилами розміщення об'єктів погоджуюсь

      Забули пароль?

      Вкажіть ел. пошту — ми надішлемо Вам новий пароль для входу
      Ел. пошта:

      Проблема на сайті

      Закрити
      Ваш e-mail:
      (необов'язково)
      Розкажіть нам, що сталось

      ул. Кобылянского — Продається офіс

      (г. Кривой Рог, Центрально-Городской район)

      85000 $

      Загальна площа: 420 кв.м

      Поверх: 2

      К-ть поверхів: 5

      Продаж офісних приміщень в центрі міста.

      Локація:
      Центрально-Міський район, вул. Кобилянського

      Пропонується до продажу офісна нерухомість у бізнес-центрі.

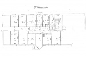
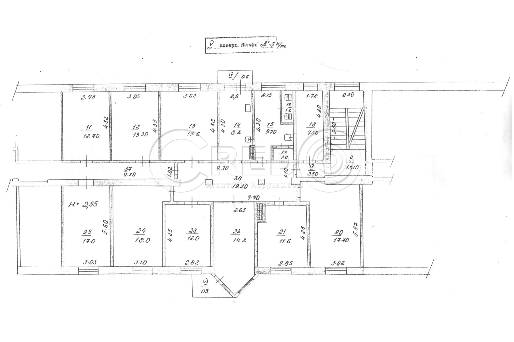
      Загальна площа — 420,8 кв.м
      2-й поверх — 218,9 кв.м
      5-й поверх — 208,9 кв.м
      Кабінети від 11 до 38 кв.м
      Усі приміщення в хорошому стані, мебльовані, обладнані кондиціонерами

      Планування
      - На кожному поверсі: ресепшн, серверна, санвузол
      - Окремі кабінети + зони загального користування

      Комунікації
      - Електроенергія та вода — по лічильниках
      - Опалення — твердопаливний котел
      - Охоронна та пожежна сигналізації

      Переваги локації
      - Центральна частина міста
      - Поруч зупинка громадського транспорту, ТРЦ, офіси, банки
      - Зручне розташування для працівників і клієнтів

      Додатково
      Меблювання:
      Продаж меблів можливий — за домовленістю

      Ціна — 85 000 $

      За будь-якими питаннями за цією пропозицією звертайтесь за номером телефону, де вам відповість наш ріелтор 097 - 541 73 31
      З повагою, команда Credo!

      Надіслати скаргу

      Закрити
      Поскаржитися на об'єкт «ул. Кобылянского (г. Кривой Рог, Центрально-Городской район)»
      Ваш коментар:(Необов'язково)
      Ваша скарга буде надіслана ріелтору, що розмістив об'єкт, а також адміністрації сайту АФНУ.
      Ваше ім'я:
      (Обов'язково)
      Ваш e-mail для відповіді:
      (Обов'язково)

      Вам также могут подойти

      ул. Донского (г. Кривой Рог, Саксаганский район) - Продається офіс, 70000 $ - АФНУ

      Оновлено: 16 грудня

      Розміщено: 6 листопада

      Продається офіс

      площа 245, поверх -/1

      г. Кривой Рог, ул. Донского

      70000 $

      Літвинова Ірина Вікторівна

      Продаж нежитлової будівлі вул. Д.Донського р-н «Первомайка»
      Окремо розташована будівля, закрита, огороджена територія з навісом та боксами.

      Особливості об’єкту:
      - Будівля з обладнанням в ідеальному стані
      - Готовий бізнес
      -…

      Детальніше

      Коментарі