Вхід на сайт

Ел. пошта:
Пароль:

Реєстрація на сайті

Призвіще: Область:
Ім'я: Населений пункт:
    По батькові: Номер телефону:
    Ел. пошта: Компанія:
      Пароль: Посада:
      Повторіть пароль: Рік початку роботи:
      Фото:
      З правилами розміщення об'єктів погоджуюсь

      Забули пароль?

      Вкажіть ел. пошту — ми надішлемо Вам новий пароль для входу
      Ел. пошта:

      Проблема на сайті

      Закрити
      Ваш e-mail:
      (необов'язково)
      Розкажіть нам, що сталось

      без комісії Павла Вірського, 49 — Продається квартира

      (г. Киев, Шевченковский район)

      51000 $

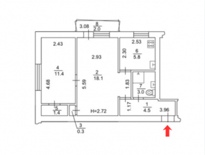
      Загальна площа: 46.5 кв.м

      Жила площа: 29.5 кв.м

      Площа кухні: 5.8 кв.м

      Кімнат: 2

      Поверх: 2

      К-ть поверхів: 5

      Без % продам 2-кімнатну квартиру по бул. Павла Вірського ( Саратівська ) 49 на 2-ому поверсі 5-ти поверхового будинку.

      Загальна площа - 46.5 кв.м.
      Житлова площа - 29.5 кв.м.
      Кухня - 5.8 кв.м.
      Висота стелі - 2.72 м.

      Стан під ремонт , кімнати суміжні, санвузол суміщений .
      В квартирі склопакети , балкон засклений склопакетами.

      Розвинена інфраструктура : в пішій доступності паркова зона, школа, дитсадок, магазини, кав'ярні.
      Ст. м. Нивки - 15 хвилин.
      51000 $ Без комісії для покупця !!!

      Телефонуйте, щоб записатися на перегляд !

      Надіслати скаргу

      Закрити
      Поскаржитися на об'єкт «Павла Вірського, 49 (г. Киев, Шевченковский район)»
      Ваш коментар:(Необов'язково)
      Ваша скарга буде надіслана ріелтору, що розмістив об'єкт, а також адміністрації сайту АФНУ.
      Ваше ім'я:
      (Обов'язково)
      Ваш e-mail для відповіді:
      (Обов'язково)

      Коментарі