Вхід на сайт

Ел. пошта:
Пароль:

Реєстрація на сайті

Призвіще: Область:
Ім'я: Населений пункт:
    По батькові: Номер телефону:
    Ел. пошта: Компанія:
      Пароль: Посада:
      Повторіть пароль: Рік початку роботи:
      Фото:
      З правилами розміщення об'єктів погоджуюсь

      Забули пароль?

      Вкажіть ел. пошту — ми надішлемо Вам новий пароль для входу
      Ел. пошта:

      Проблема на сайті

      Закрити
      Ваш e-mail:
      (необов'язково)
      Розкажіть нам, що сталось

      Івана Авраменка — Здається торгівельний майданчик

      (г. Кривой Рог, Саксаганский район)

      110 грн. за кв.м.

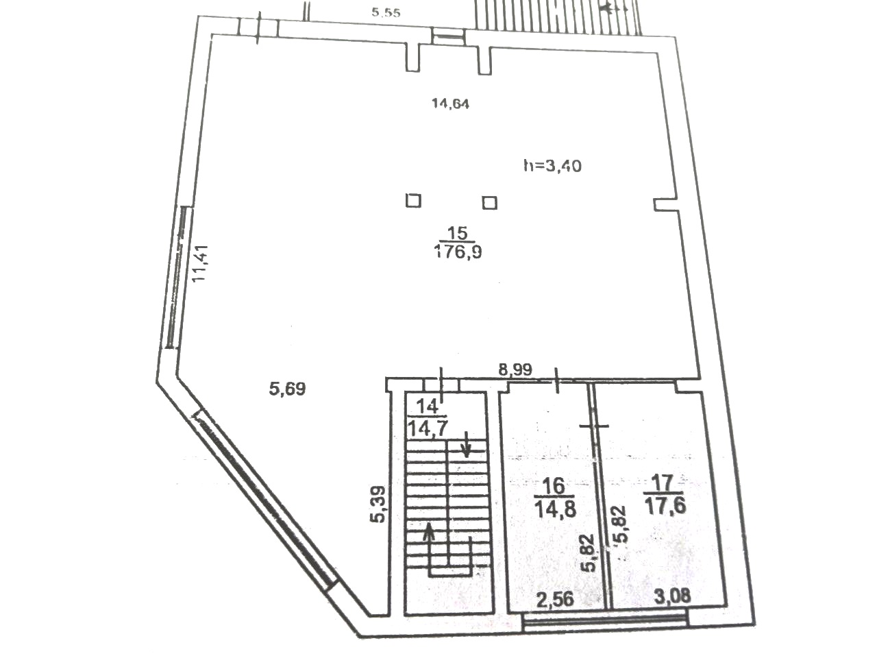
      Загальна площа: 210 кв.м

      Поверх: 2

      К-ть поверхів: 2

      Оренда приміщення, вул.Івана Авраменка, ринок «Вечіній»
      Окремо розташована будівля.

      Технічні характеристики:
      - Приміщення розташоване на 2 поверсі 2-поверхової будівлі.
      - Загальна площа 210кв.м.
      - Висота стелі 3,40м.
      - Великі вітражні вікна
      - Місце для реклами

      Планування об’єкту:
      - Просторий торгівельний зал.
      - Підсобне приміщення.
      - Два кабінети

      Комунікації:
      - водопостачання,
      - центральна каналізація,
      - електроенергія 380V, 14кВт
      - охорона

      Особливості об’єкту:
      - Приміщення знаходиться в доброму стані, стеля Армстронг, на підлозі кахель.
      - Великі вітражні вікна.
      - Парковка біля приміщення.

      Логістична розв’язка: район з великим пішохідним трафіком.
      Поряд багато магазинів, кафе, зупинка.

      Оренда – 110грн/кв.м. + комун. платежі
      - Послуга агенції 50%

      За будь-якими питаннями за цією або схожими пропозиціями звертайтесь за номером телефону, де вам відповість наш ріелтор 098 985 09 08.
      З повагою, команда Credo!

      Надіслати скаргу

      Закрити
      Поскаржитися на об'єкт «Івана Авраменка (г. Кривой Рог, Саксаганский район)»
      Ваш коментар:(Необов'язково)
      Ваша скарга буде надіслана ріелтору, що розмістив об'єкт, а також адміністрації сайту АФНУ.
      Ваше ім'я:
      (Обов'язково)
      Ваш e-mail для відповіді:
      (Обов'язково)

      Вам также могут подойти

      ул. Мелешкина (г. Кривой Рог, Саксаганский район) - Здається торгівельний майданчик, 150 грн. за кв.м. - АФНУ

      Оновлено: 16 березня

      Розміщено: 21 травня 2025

      Здається торгівельний майданчик

      площа 136, поверх 1/12

      г. Кривой Рог, ул. Мелешкина

      150 грн. за кв.м.

      Літвинова Ірина Вікторівна

      Оренда приміщення
      - Саксаганський район
      - вул. В. Великого, 29в
      - ЖК "Едельвейс"

      Про об’єкт:
      - приміщення розташоване в ЖК на першому поверсі
      - окремий вхід
      - сучасні комунікації
      -…

      Детальніше

      ул. Мелешкина (г. Кривой Рог, Саксаганский район) - Здається торгівельний майданчик, 150 грн. за кв.м. - АФНУ

      Оновлено: 16 березня

      Розміщено: 21 травня 2025

      Здається торгівельний майданчик

      площа 136, поверх 1/12

      г. Кривой Рог, ул. Мелешкина

      150 грн. за кв.м.

      Літвинова Ірина Вікторівна

      Оренда приміщення
      - Саксаганський район
      - вул. В. Великого, 29в
      - ЖК "Едельвейс"

      Про об’єкт:
      - приміщення розташоване в ЖК на першому поверсі
      - окремий вхід
      - сучасні комунікації
      -…

      Детальніше

      пр. Металлургов (г. Кривой Рог, Дзержинский район) - Здається торгівельний майданчик, 100 грн. за кв.м. - АФНУ

      Оновлено: 12 березня

      Розміщено: 26 травня 2025

      Здається торгівельний майданчик

      площа 448, поверх 1/1

      г. Кривой Рог, пр. Металлургов

      100 грн. за кв.м.

      Літвинова Ірина Вікторівна

      Оренда приміщення, "Соцмісто", парк Б.Хмельницького.
      - Металургійний район
      - пр. Металургів, 5а
      - розташоване в центрі "Соцміста"
      - парк імені Б. Хмельницького

      Про об’єкт:
      - окрема будівля в парковій зоні…

      Детальніше

      Коментарі