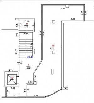
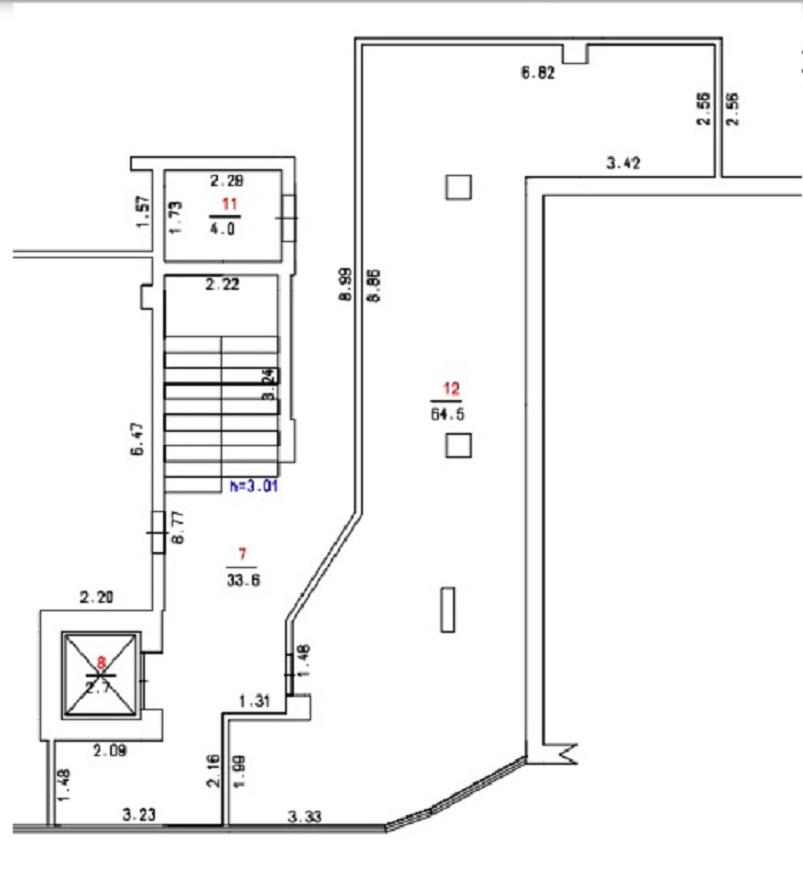
Здам в оренду просторе та світле приміщення в центрі по вул.Грушевського 51, БЦ"Грушевський". Поверх: 2/5 Площа: 64,5 м.кв. Вартість: 17000 грн/міс + комуналка (якщо з меблями +2000 грн) Оплата: одразу 1й, останній місяць + комісійні агентства.
Працювати у такому бізнес центрі - це саме задоволення. Вигідна локація - самісінький центр міста, працює ліфт. Бізнес центр новий та сучасний, повністю працюючий, усі решта приміщень здані. Цілодобовий доступ. Світло 24/7. Панорамне фасадне вікно на всю ширину. Опалення - кондиціонер. Є можливість підключити централізоване. В приміщенні є виводи на воду/каналізацію. Приміщення вільне. Ключі на руках. Показ по домовленості.
Оренда приміщення Центр, вул.Грушевського, 57 Поверх: 2/3 Площа: 47,7 м2. Вартість: 10000грн + комунальні. (Оплата: одразу 1-й, останній, + комісійні агентства) Здається з обладнанням. Три перукарських крісла, крісло для миття…
Оренда приміщення Центр, вул.Грушевського, 57 Поверх: 2/3 Площа: 47,7 м2. Вартість: 10000грн + комунальні. (Оплата: одразу 1-й, останній, + комісійні агентства) Здається з обладнанням. Три перукарських крісла, крісло для миття…
Оренда комерційного приміщення 47.7 м.кв. Центр вул. Грушевського 57. Приміщення на 2 поверсі в 3-х поверховий будівлі, Фасадне, світле і просторе, утеплення з зовні. Великий трафік людей і авто. Здається…