Вхід на сайт

Ел. пошта:
Пароль:

Реєстрація на сайті

Призвіще: Область:
Ім'я: Населений пункт:
    По батькові: Номер телефону:
    Ел. пошта: Компанія:
      Пароль: Посада:
      Повторіть пароль: Рік початку роботи:
      Фото:
      З правилами розміщення об'єктів погоджуюсь

      Забули пароль?

      Вкажіть ел. пошту — ми надішлемо Вам новий пароль для входу
      Ел. пошта:

      Проблема на сайті

      Закрити
      Ваш e-mail:
      (необов'язково)
      Розкажіть нам, що сталось

      Купріна — Здається торгівельний майданчик

      (г. Кривой Рог, Центрально-Городской район)

      100 грн. за кв.м.

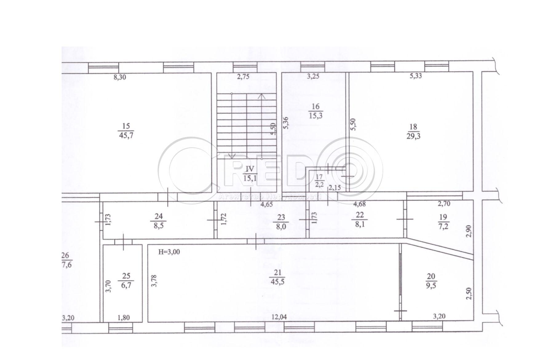
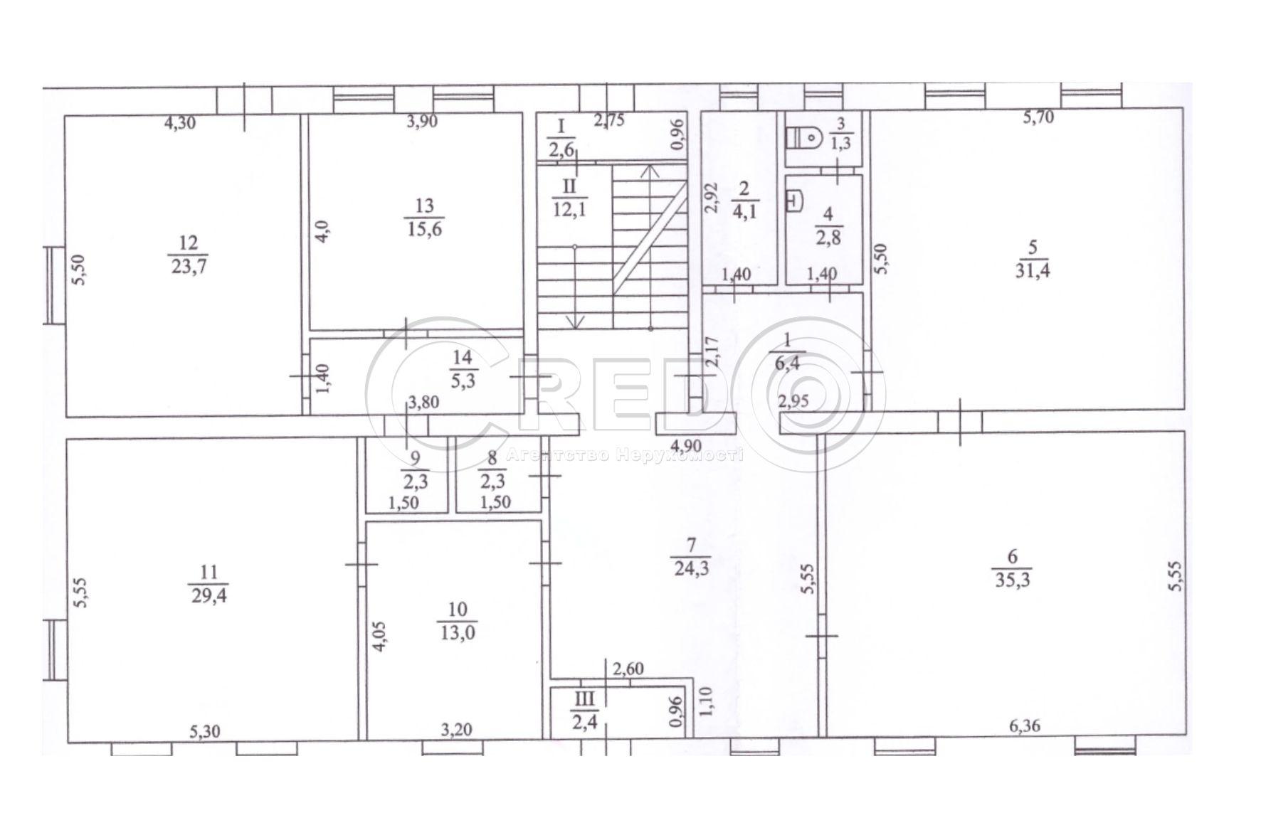
      Загальна площа: 433 кв.м

      Поверх: 1

      К-ть поверхів: 2

      Оренда двоповерхової окремо розташованної будівлі по вул. Купріна

      Центрально-Міський район
      Кіровоградська траса
      "червона лінія"

      Про об’єкт:
      - загальна площа - 433 кв.м
      - 1-поверх- 214 кв.м
      - 2-поверх- 218 кв.м
      - висота стелі- 3 м
      - центральний вхід
      - оренда по поверхово або повністью
      - ремонт під орендаря
      - є можливість побудувати складське приміщення за потребою орендаря

      Комунікації:
      - центральне електропостачання 20 кВт; 380 Вт
      - центральне водопостачання, каналізація
      - опалення електричне
      - кондиціонери
      - пожежна, охоронна сигналізації
      - велика парковка перед будівлею

      Логістична розв’язка:
      - розташоване вздовж траси на Київ та Кропивницький
      - автомобільний та пішохідний трафік
      - зручний під’їзд для великогабаритного транспорту

      Додаткові платежі:
      - оплата по лічильникам - світло, вода
      - інтернет, охорона
      - 50% - послуга агенції
      Оренда - перший поверх 220грн/кв.м;
      другий поверх 100грн/кв.м.

      За будь-якими питаннями за цією або схожими пропозиціями звертайтесь за номером телефону 067 696 16 51.

      З повагою, команда Credo!

      Надіслати скаргу

      Закрити
      Поскаржитися на об'єкт «Купріна (г. Кривой Рог, Центрально-Городской район)»
      Ваш коментар:(Необов'язково)
      Ваша скарга буде надіслана ріелтору, що розмістив об'єкт, а також адміністрації сайту АФНУ.
      Ваше ім'я:
      (Обов'язково)
      Ваш e-mail для відповіді:
      (Обов'язково)

      Вам также могут подойти

      пр. Металлургов (г. Кривой Рог, Дзержинский район) - Здається торгівельний майданчик, 100 грн. за кв.м. - АФНУ

      Оновлено: 12 березня

      Розміщено: 26 травня 2025

      Здається торгівельний майданчик

      площа 448, поверх 1/1

      г. Кривой Рог, пр. Металлургов

      100 грн. за кв.м.

      Літвинова Ірина Вікторівна

      Оренда приміщення, "Соцмісто", парк Б.Хмельницького.
      - Металургійний район
      - пр. Металургів, 5а
      - розташоване в центрі "Соцміста"
      - парк імені Б. Хмельницького

      Про об’єкт:
      - окрема будівля в парковій зоні…

      Детальніше

      Івана Авраменка (г. Кривой Рог, Саксаганский район) - Здається торгівельний майданчик, 110 грн. за кв.м. - АФНУ

      Оновлено: 2 березня

      Розміщено: 2 березня

      Здається торгівельний майданчик

      площа 210, поверх 2/2

      г. Кривой Рог, Івана Авраменка

      110 грн. за кв.м.

      Літвинова Ірина Вікторівна

      Оренда приміщення, вул.Івана Авраменка, ринок «Вечіній»
      Окремо розташована будівля.

      Технічні характеристики:
      - Приміщення розташоване на 2 поверсі 2-поверхової будівлі.
      - Загальна площа 210кв.м.
      - Висота стелі 3,40м.
      - Великі вітражні…

      Детальніше

      Коментарі