Вхід на сайт

Ел. пошта:
Пароль:

Реєстрація на сайті

Призвіще: Область:
Ім'я: Населений пункт:
    По батькові: Номер телефону:
    Ел. пошта: Компанія:
      Пароль: Посада:
      Повторіть пароль: Рік початку роботи:
      Фото:
      З правилами розміщення об'єктів погоджуюсь

      Забули пароль?

      Вкажіть ел. пошту — ми надішлемо Вам новий пароль для входу
      Ел. пошта:

      Проблема на сайті

      Закрити
      Ваш e-mail:
      (необов'язково)
      Розкажіть нам, що сталось

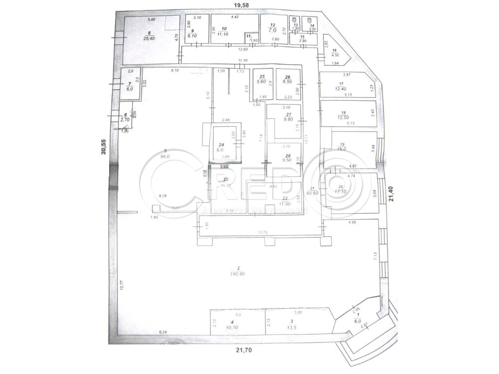
      ул. Независимости Украины — Продається торгівельний майданчик

      (г. Кривой Рог, Долгинцевский район)

      350 $ за кв.м.

      Загальна площа: 600 кв.м

      Поверх: 1

      К-ть поверхів: 1

      Продаж комерційної нерухомості Довгинцевський район,
      Вул. Незалежності України

      Про об’єкт:
      - Окремо розташована будівля
      - Мікр. Східний-2
      - Загальна площа: 600 кв.м

      Планування об’єкту:
      - Одноповерхова будівля
      - Два центральних, та додатковий виходи
      - Вільне планування

      Комунікації:
      - Електроенергія - 40кВт; 380 Вт
      - Центральне водопостачання
      - Центральна каналізація
      - Парко місця для автомобілів

      Логістична розв’язка:
      - Об’єкт знаходиться в середені житлового масиву
      - Зупинка громадського транспорту
      - Густонаселений район

      Особливості приміщення:
      - Приміщення вільного призначення, можлива реконструкція
      - Підійде під торговельний, розважальний комплекс, або будь яку Вашу діяльність.

      Ціна $350 за кв.м

      За будь-якими питаннями за цією або схожими пропозиціями звертайтесь за номером телефону, де вам відповість наш ріелтор 097 541 73 31.

      З повагою, команда Credo!

      Надіслати скаргу

      Закрити
      Поскаржитися на об'єкт «ул. Независимости Украины (г. Кривой Рог, Долгинцевский район)»
      Ваш коментар:(Необов'язково)
      Ваша скарга буде надіслана ріелтору, що розмістив об'єкт, а також адміністрації сайту АФНУ.
      Ваше ім'я:
      (Обов'язково)
      Ваш e-mail для відповіді:
      (Обов'язково)

      Вам также могут подойти

      ул. Вечернекутская (г. Кривой Рог, Долгинцевский район) - Здається торгівельний майданчик, 400 грн. за кв.м. - АФНУ

      Оновлено: 11 березня

      Розміщено: 29 січня

      Здається торгівельний майданчик

      площа 220, поверх 1/1

      г. Кривой Рог, ул. Вечернекутская

      400 грн. за кв.м.

      Літвинова Ірина Вікторівна

      Оренда приміщення вул. Вечірньокутська «Ласточка»
      - Торгівельний комплекс
      - Локація - в зоні скупчення торговельних мереж.

      Технічні характеристики:
      - Приміщення знаходиться в доброму стані
      - Має два входи

      Планування об’єкту…

      Детальніше

      пр. Гагаріна (г. Кривой Рог, Саксаганский район) - Здається торгівельний майданчик, 400 грн. за кв.м. - АФНУ

      Оновлено: 5 лютого

      Розміщено: 14 травня 2025

      Здається торгівельний майданчик

      площа 103, поверх 1/4

      г. Кривой Рог, пр. Гагаріна

      400 грн. за кв.м.

      Літвинова Ірина Вікторівна

      Пр. Університетський, 3 (Гагаріна)
      Саксаганський район
      - загальна площа-103 кв.м
      - торгівельний зал-73,4 кв.м
      - висота стелі - Н= 3,20 м

      Комунікації:
      - центральне електропостачання 12 кВт; 380 Вт
      -…

      Детальніше

      пр. Університетський (г. Кривой Рог, Саксаганский район) - Здається торгівельний майданчик, 350 грн. за кв.м. - АФНУ

      Оновлено: 27 лютого

      Розміщено: 16 травня 2025

      Здається торгівельний майданчик

      площа 308, поверх 1/4

      г. Кривой Рог, пр. Університетський

      350 грн. за кв.м.

      Літвинова Ірина Вікторівна

      Оренда магазину Саксаганський район
      пр. Університетський (пр. Гагаріна), 96 квартал
      "червона лінія"

      Технічні характеристики:
      - перший поверх 4-х поверхового житлового будинку
      - гарний фасад
      - великі вітражні вікна
      - ролети…

      Детальніше

      Коментарі