Вхід на сайт

Ел. пошта:
Пароль:

Реєстрація на сайті

Призвіще: Область:
Ім'я: Населений пункт:
    По батькові: Номер телефону:
    Ел. пошта: Компанія:
      Пароль: Посада:
      Повторіть пароль: Рік початку роботи:
      Фото:
      З правилами розміщення об'єктів погоджуюсь

      Забули пароль?

      Вкажіть ел. пошту — ми надішлемо Вам новий пароль для входу
      Ел. пошта:

      Проблема на сайті

      Закрити
      Ваш e-mail:
      (необов'язково)
      Розкажіть нам, що сталось

      без комісії ул. Лисковская, 2/71 — Продається квартира

      (г. Киев, Деснянский район)

      65000 $

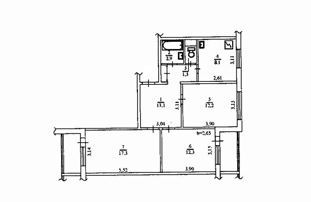
      Загальна площа: 76 кв.м

      Жила площа: 42 кв.м

      Площа кухні: 8 кв.м

      Кімнат: 3

      Поверх: 11

      К-ть поверхів: 16

      Продаж 3к квартири в Деснянському районі, Лісківська 2/71
      Площа 76/42/8, 11/16 поверх.
      Простора, двустороння квартира. Стан житловий, 2 балкона, санвузол роздільний. Склопакети, меблі за домовленостю.
      Гарна транспортна розв'язка.
      Вартість 65000 у.е. без комісії для покупця

      Надіслати скаргу

      Закрити
      Поскаржитися на об'єкт «ул. Лисковская, 2/71 (г. Киев, Деснянский район)»
      Ваш коментар:(Необов'язково)
      Ваша скарга буде надіслана ріелтору, що розмістив об'єкт, а також адміністрації сайту АФНУ.
      Ваше ім'я:
      (Обов'язково)
      Ваш e-mail для відповіді:
      (Обов'язково)

      Коментарі