Вхід на сайт

Ел. пошта:
Пароль:

Реєстрація на сайті

Призвіще: Область:
Ім'я: Населений пункт:
    По батькові: Номер телефону:
    Ел. пошта: Компанія:
      Пароль: Посада:
      Повторіть пароль: Рік початку роботи:
      Фото:
      З правилами розміщення об'єктів погоджуюсь

      Забули пароль?

      Вкажіть ел. пошту — ми надішлемо Вам новий пароль для входу
      Ел. пошта:

      Проблема на сайті

      Закрити
      Ваш e-mail:
      (необов'язково)
      Розкажіть нам, що сталось

      ул. Ильичевская — Продається квартира

      (г. Кривой Рог, Саксаганский район)

      12000 $

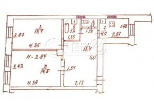
      Загальна площа: 50 кв.м

      Жила площа: 28 кв.м

      Площа кухні: 5 кв.м

      Кімнат: 2

      Поверх: 2

      К-ть поверхів: 2

      Продаж 2-х кімнатної квартири, Саксаганський район, вул.Гетьманська, Дзержинка.

      Про об’єкт:

      - Квартира розташована на 2/2 поверхового будинку.
      - Загальна площа 50,3кв.м.,
      - Житлова 28.2кв.м., всі кімнати окремі,
      - Кухня 5кв.м.,
      - Санвузол окремо,
      - Висота стелі 2.84м.

      Особливості квартири:

      - Простора квартира, двостороння.
      - Частково мебльована.
      - Вікна м/пл., замінені труби м/пл., встановлені лічильники, бойлер, кондиціонер, колонка - автомат.

      Об'єкти поруч:
      - Центр міста
      - Зручне місце розташування
      - Поряд велика кількість магазинів, супермаркет «Varus», кафе, аптека.

      Ціна 12 000$ торг

      За будь-якими питаннями за цією або схожими пропозиціями звертайтесь за номером телефону, де вам відповість наш ріелтор 098 985 09 08.

      З повагою, команда АН Credo

      Надіслати скаргу

      Закрити
      Поскаржитися на об'єкт «ул. Ильичевская (г. Кривой Рог, Саксаганский район)»
      Ваш коментар:(Необов'язково)
      Ваша скарга буде надіслана ріелтору, що розмістив об'єкт, а також адміністрації сайту АФНУ.
      Ваше ім'я:
      (Обов'язково)
      Ваш e-mail для відповіді:
      (Обов'язково)

      Вам также могут подойти

      Військове містечко-1 (г. Кривой Рог, Саксаганский район) - Продається квартира, 12000 $ - АФНУ

      Оновлено: 30 вересня

      Розміщено: 11 вересня

      Продається квартира

      2 кімн., площа 53/28/7, поверх 4/5

      г. Кривой Рог, Військове містечко-1

      12000 $

      Літвинова Ірина Вікторівна

      Пропонуємо до продажу 2кімнатну квартиру "чеського" планування за адресою Військове містечко-1.
      Розташування між житломасивами Гданцівка, Кірпічний,
      Нижня Антонівка та річкою Інгулець.
      Назву залишили але функцію військового об'єкту
      мікрорайон давно не…

      Детальніше

      ул. Рокоссовского (г. Кривой Рог, Саксаганский район) - Продається квартира, 12500 $ - АФНУ

      Оновлено: 17 грудня

      Розміщено: 14 жовтня

      Продається квартира

      2 кімн., площа 44/27/5, поверх 3/3

      г. Кривой Рог, ул. Рокоссовского

      12500 $

      Літвинова Ірина Вікторівна

      Продаж 2-кімнатної квартири — 96 квартал, вул. Рокосовського!
      Пропонуємо простору «сталінку» в цегляному будинку — ідеальний варіант для тих, хто цінує надійність, висоту стель і зручне розташування.

      Про об’єкт:
      Поверх:…

      Детальніше

      ул. 200 лет Кривого Рога (г. Кривой Рог, Саксаганский район) - Продається квартира, 13500 $ - АФНУ

      Оновлено: 17 листопада

      Розміщено: 17 листопада

      Продається квартира

      3 кімн., площа 60/42/7, поверх 9/9

      г. Кривой Рог, ул. 200 лет Кривого Рога

      13500 $

      Літвинова Ірина Вікторівна

      Продаж 3-х кімнатної квартири, пр. 200-річчя Кривого Рогу.

      Про об’єкт:
      - Квартира розташована на 9/9 поверхового будинку.
      - Загальна площа 60.47кв.м.,
      - житлова 42.7кв.м., всі кімнати окремі,
      - кухня 7кв.м.,…

      Детальніше

      Коментарі