Вхід на сайт

Ел. пошта:
Пароль:

Реєстрація на сайті

Призвіще: Область:
Ім'я: Населений пункт:
    По батькові: Номер телефону:
    Ел. пошта: Компанія:
      Пароль: Посада:
      Повторіть пароль: Рік початку роботи:
      Фото:
      З правилами розміщення об'єктів погоджуюсь

      Забули пароль?

      Вкажіть ел. пошту — ми надішлемо Вам новий пароль для входу
      Ел. пошта:

      Проблема на сайті

      Закрити
      Ваш e-mail:
      (необов'язково)
      Розкажіть нам, що сталось

      ул. Войкова — Продається будинок

      (г. Кривой Рог, Жовтневый район)

      135000 $

      Загальна площа: 200 кв.м

      Площа ділянки: 10 сот

      Кімнат: 5

      К-ть поверхів: 2

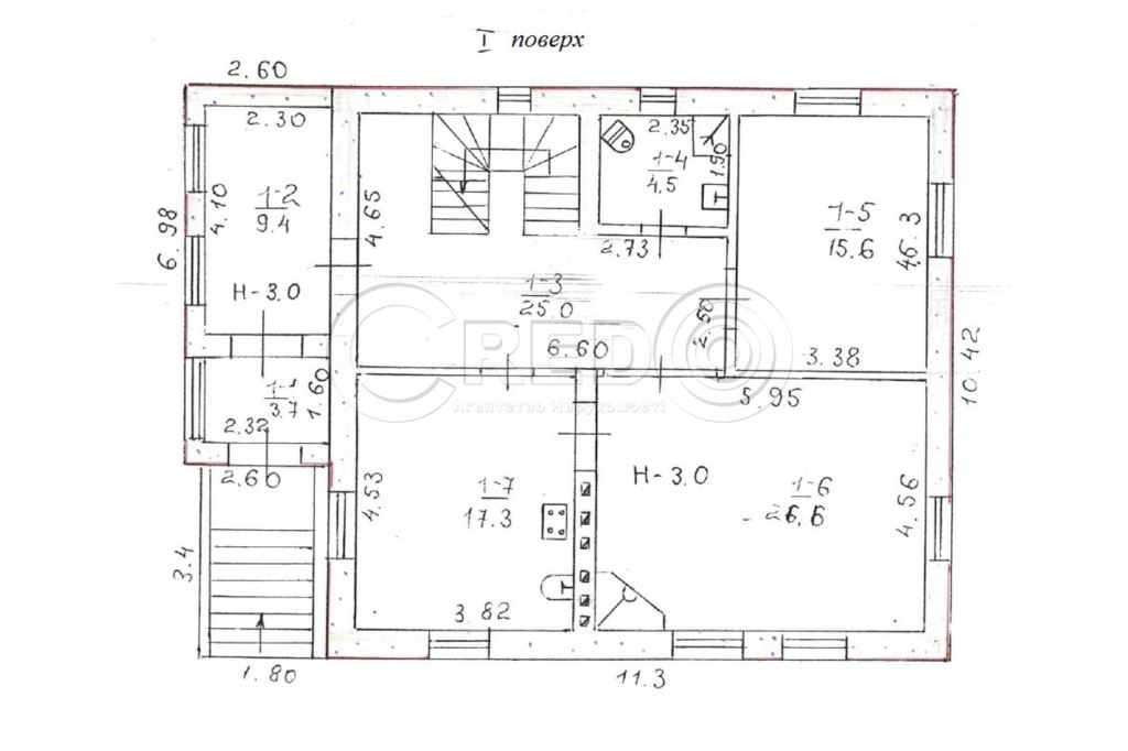
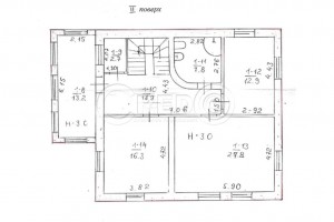
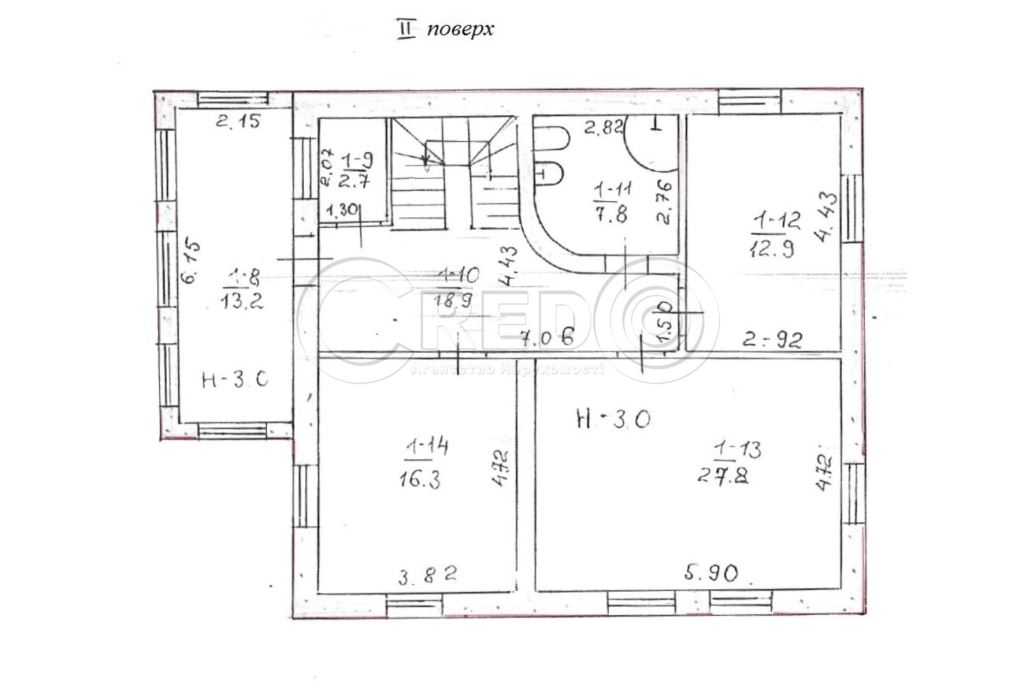
      Продаж 2-поверхового будинку, район 20-й квартал, вул. Прирічна

      Про домоволодіння:
      - Будинок 200кв.м.,
      - Земельна ділянка 10 соток (кутова), з ландшафтним дизайном.
      - Гараж на чотири авто;
      - Підвал;
      - Зона барбекю;
      - Літня тераса;
      - Декоративне озеро;

      Планування будинку:
      - 1 поверх: гостьова 26.6кв.м., кухня столова 17,3кв.м., кабінет 15,6кв.м., с/вузол 4,5кв.м
      - 2 поверх: спальня 27,8кв.м., спальня 12,9кв.м., спальня13,2кв.м., с/вузол 7,8кв.м., кабінет 16,3кв.м.
      - Цокольний поверх: гараж на 3-4 авто з автоматичними воротами, заг.пл. 55,6кв.м., топочна 13,2кв.м., сауна 5,4 кв.м.

      Комунікації:
      - Опалення газове
      - Електроенергія 380V
      - Центральне водопостачання та каналізація
      - В підвальному приміщенні система фільтраціі, автополива и резервуари з водою;

      Локація:
      Найкраща екологічна локація в місті, річка, чисте свіже повітря.

      Вартість домоволодіння 135 000$

      За будь-якими питаннями за цією або схожими пропозиціями звертайтесь за номером телефону 067 638 50 50.
      З повагою, команда Credo!

      Надіслати скаргу

      Закрити
      Поскаржитися на об'єкт «ул. Войкова (г. Кривой Рог, Жовтневый район)»
      Ваш коментар:(Необов'язково)
      Ваша скарга буде надіслана ріелтору, що розмістив об'єкт, а також адміністрації сайту АФНУ.
      Ваше ім'я:
      (Обов'язково)
      Ваш e-mail для відповіді:
      (Обов'язково)

      Вам также могут подойти

      ул. Черняховского (г. Кривой Рог, Центрально-Городской район) - Продається будинок, 135000 $ - АФНУ

      Оновлено: 12 серпня

      Розміщено: 29 березня 2023

      Продається будинок

      г. Кривой Рог, ул. Черняховского

      135000 $

      Літвинова Ірина Вікторівна

      Будинок розташований по вул.Черняховського, Центрально міський р-н.
      На території два житлових будинки та будинок для гостей з сауною. Чудовий сад, зона барбекю.

      Про об'єкт:
      - Земельна ділянка 13 соток
      -…

      Детальніше

      ул. Украинская (г. Кривой Рог, Центрально-Городской район) - Продається будинок, 120000 $ - АФНУ

      Оновлено: 21 серпня

      Розміщено: 7 травня

      Продається будинок

      г. Кривой Рог, ул. Украинская

      120000 $

      Літвинова Ірина Вікторівна

      Будинок розтошований по вул. Українська, Центральноміський р-н.
      Баня для гостей, басейн, сад.

      Про об'єкт:
      - Земельна ділянка 7 соток
      - Загальна площа будину 250кв.м.
      - Перший поверх заг.пл. 150кв.м.
      -…

      Детальніше

      Коментарі